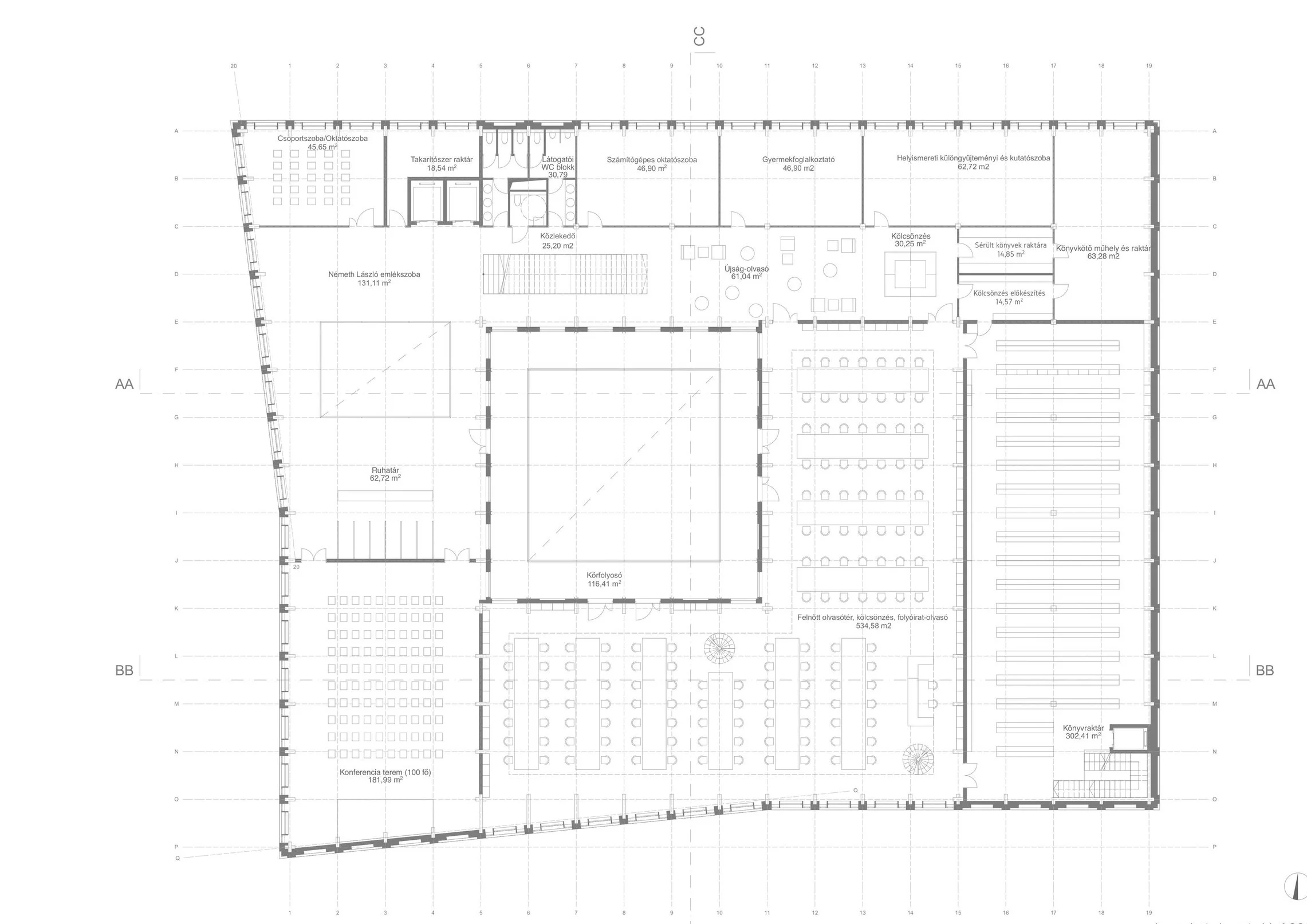
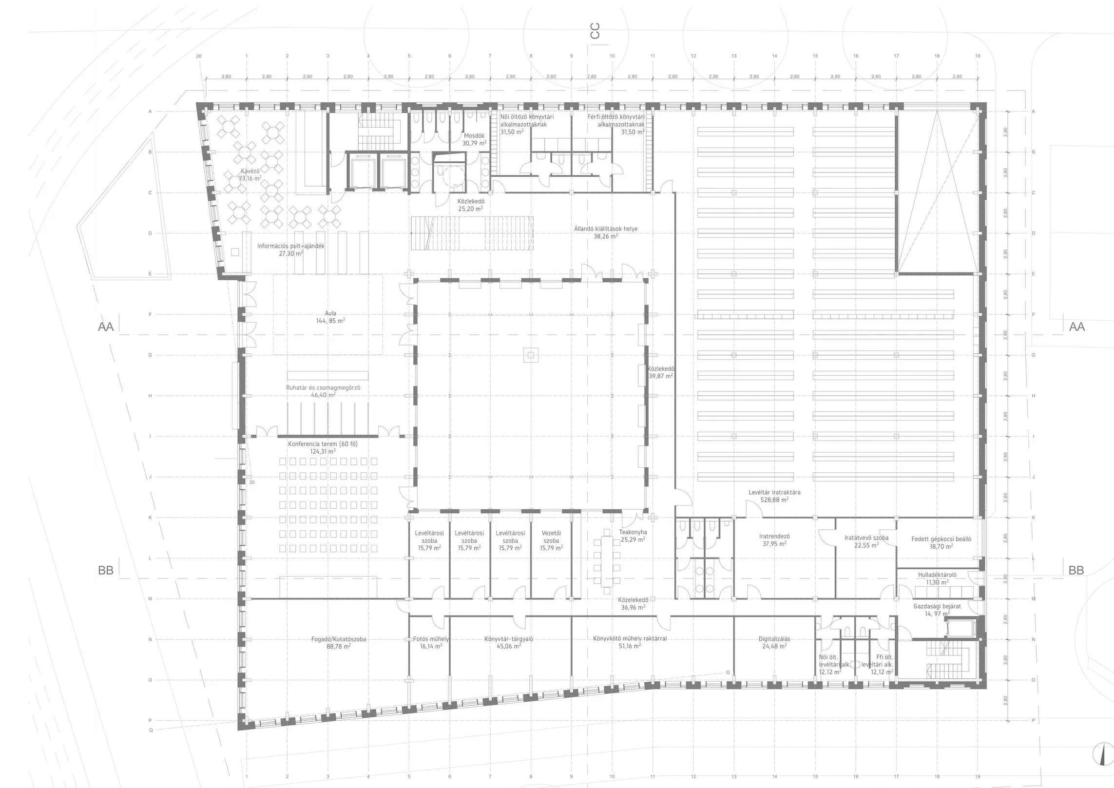
hodmvh_cam1.jpg
hodmvh_cam4.jpg
hodmvh_cam5.jpg
0011.jpg
0013.jpg
0014.jpg
0018.jpg
0019.jpg
prev / next